Walnut Cottage House Plan

https://houseplans.southernliving.com/web/image/product.template/10782/image_1920?unique=5a82dce

Details: 3,501 Sq Ft, 5 Bedrooms, 4.5 Baths

2,710.00 2710.0 USD 2,710.00

0.00

Not Available For Sale

  • Plan Package
  • Foundation
  • Additional Sets
  • Additional Options

This combination does not exist.

Foundation: Pier

Floor Plan Features of the Walnut Cottage House Plan


Specifications


Floors: 2
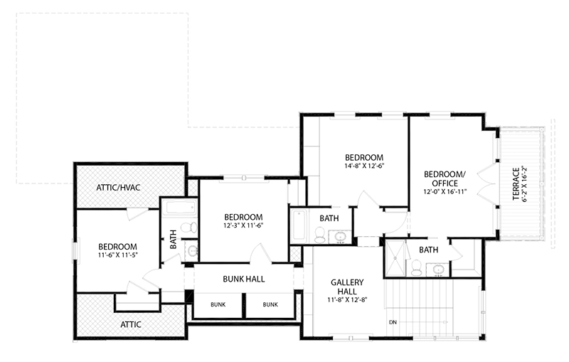
Bedrooms: 5
Bathrooms: 4.5
Foundation(s): Pier

Square Feet


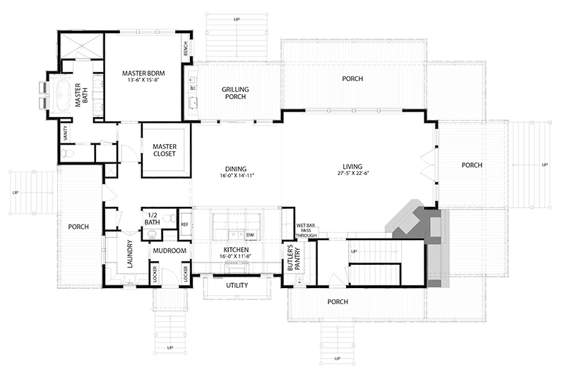
Main Floor: 2,244
Upper Floor: 1,257
Total Conditioned: 3,501
Rear Porch: 1,281

Dimensions


Width: 51'-11"
Depth: 82'-4"
Height: 33'-0"

House Levels


Level Name Ceiling Heights
Main Floor 10'-0"
Upper Floor 9'-0"

Construction


Wall Construction: 2x6
Exterior Finish: Board & Batten
Roof Pitch: 12:12

Features


Kitchen: Island, Snack, Pantry, U-Shaped
Primary Bedroom: Tub, Double Sink, Shower, Porch, Walk-in Closet
Additional: Fireplace, Porch, Home Office/Study

Description


Walnut Cottage makes the most of its many outdoor spaces, offering porches on every side and a separate grilling porch. Inside, its open plan is airy and bright, and its 5 bedrooms provide plenty of space for family, friends, and guests. 


Photography and 3D images by Lake and Land Studio, LLC

Color rendering by Adam Trest

Designed by Lake & Land Studios, LLC.

Plan number SL-2006.

CAD File
Source drawing files of the plan. This package is best provided to a local design professional when customizing the plan with architect.  [Note: not all house plans are available as CAD sets.]

PDF Plan Set
Downloadable file of the complete drawing set. Required for customization or printing large number of sets for sub-contractors.

Construction Set
Five complete sets of construction plans, when building the house as-is or with minor field adjustments. This set is stamped with a copyright.

Pricing Set
Recommended for construction bids or pricing. Stamped "Not For Construction". The purchase price can be applied toward an upgrade to other packages of the same plan.