The Shoals House Plan

https://houseplans.southernliving.com/web/image/product.template/10121/image_1920?unique=caf10dc

Details: 4,476 Sq Ft, 4 Bedrooms, 3.5 Baths

1,700.00 1700.0 USD 1,700.00

0.00

Not Available For Sale

  • Plan Package
  • Foundation
  • Additional Sets
  • Additional Options

This combination does not exist.

Foundation: Walkout Basement

Floor Plan Features of the The Shoals House Plan


Specifications


Floors: 3
Bedrooms: 4
Bathrooms: 3.5
Foundation(s): Walkout Basement

Square Feet


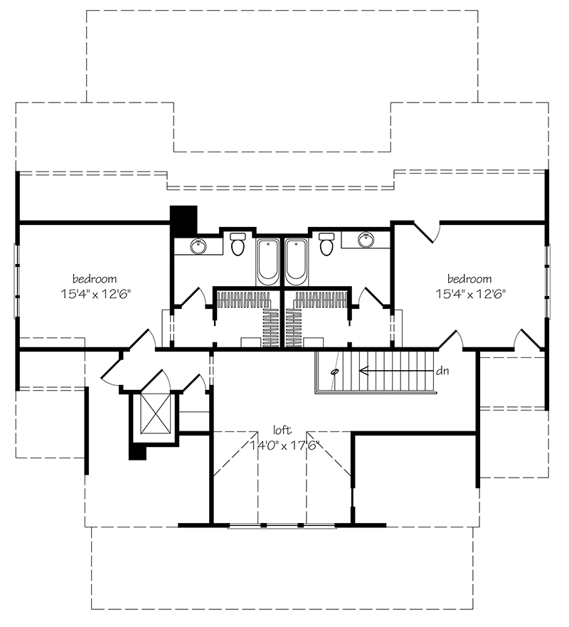
Main Floor: 2,128
Upper Floor: 1,120
Lower Floor: 1,228
Total Conditioned: 4,476
Garage: 900

Dimensions


Width: 54'-0"
Depth: 60'-0"
Height: 29'-0"

House Levels


Level Name Ceiling Heights
Main Floor 10'-0"
Upper Floor 9'-0"
Lower Level 9'-0"

Construction


Wall Construction: 2x4
Exterior Finish: Brick, Lap Siding
Roof Pitch: 9:12

Features


Kitchen: Island, Snack, Pantry, Breakfast Nook
Primary Bedroom: Tub, Double Sink, Shower, Porch, Private Toilet, Walk-in Closet
Additional: Fireplace, Loft, Porch, Media Room, Patio/Terrace, Home Office/Study

Garage


Type Size
Tuck Under 3 - Stall

Description


Designed by L. Mitchell Ginn and Associates, Inc.

Plan number SL-1172.

CAD File
Source drawing files of the plan. This package is best provided to a local design professional when customizing the plan with architect.  [Note: not all house plans are available as CAD sets.]

PDF Plan Set
Downloadable file of the complete drawing set. Required for customization or printing large number of sets for sub-contractors.

Construction Set
Five complete sets of construction plans, when building the house as-is or with minor field adjustments. This set is stamped with a copyright.

Pricing Set
Recommended for construction bids or pricing. Stamped "Not For Construction". The purchase price can be applied toward an upgrade to other packages of the same plan.