Summertime Bungalow House Plan
Details: 3,117 Sq Ft, 3 Bedrooms, 3.5 Baths
Floor Plan Features of the Summertime Bungalow House Plan
Specifications
Square Feet
Dimensions
House Levels
| Level Name | Ceiling Heights | 
|---|---|
| Main Floor | 10'-0" | 
| Upper Floor | 8'-8" | 
Construction
Features
Garage
| Type | Size | 
|---|---|
| Attached | 3 - Stall | 
Description
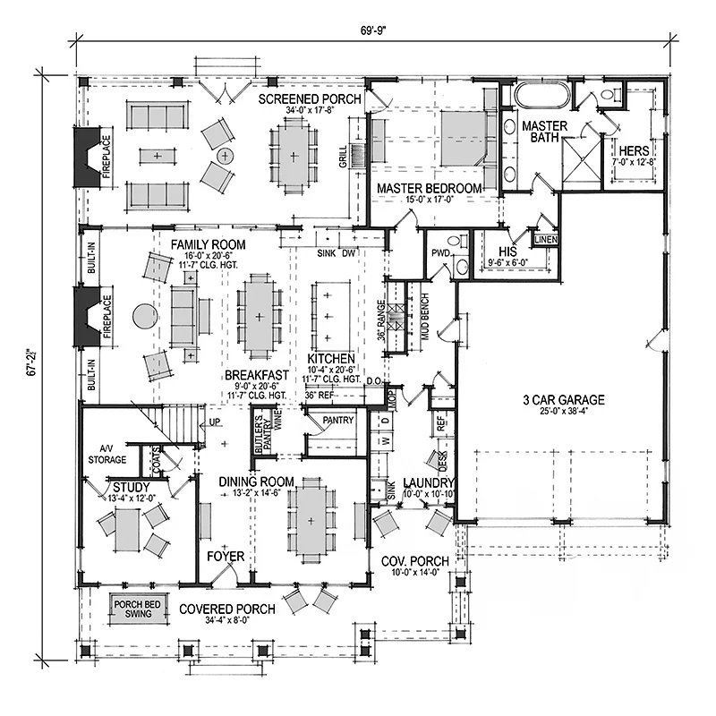
With two generous porches, this three bedroom, three and a half bath design has great entertaining possibilities! The large front porch is covered and includes a spot for a swinging bed, and a screened porch in the rear of the home adds nearly 600 square feet of additional outdoor living space.
Inside, the spacious open concept kitchen boasts an expansive island and a butler's pantry walk-through to the dining room. A study and convenient storage area off the foyer add to the functionality of this beautiful home. A friend's entry leads to the laundry area, mud bench, and powder room, and serves as a separate entry to the kitchen and pantry area.
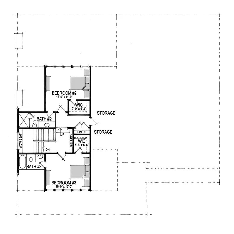
The main floor owner's suite boasts dual sinks, a tub and shower, and large his and hers closets. The second floor contains two bedrooms, each with their own full bathroom and walk in closet, as well as easy access to an expansive walk in storage area.
The Summertime Bungalow plan series offers a variety of options such as an additional guest suite, bonus room, exercise room and apartment. Also, these options can be combined to meet owner's specific needs.
Designed by Sailer Design, LLC.
Plan number SL-2012.
                    CAD File
                    Source drawing files of the plan. This package is best provided to a local design professional when customizing the plan with architect.  [Note: not all house plans are available as CAD sets.]
                    
                    PDF Plan Set
                    Downloadable file of the complete drawing set.  Required for customization or printing large number of sets for sub-contractors.
                    
                    Construction Set
                    Five complete sets of construction plans, when building the house as-is or with minor field adjustments.  This set is stamped with a copyright.
                    
                    Pricing Set
                    Recommended for construction bids or pricing. Stamped "Not For Construction".  The purchase price can be applied toward an upgrade to other packages of the same plan.