Northport Carriage House Garage Plan

https://houseplans.southernliving.com/web/image/product.template/11422/image_1920?unique=626fd2c

Details: 393 Sq Ft, 1 Baths

800.00 800.0 USD 800.00

0.00

Not Available For Sale

  • Plan Package
  • Foundation
  • Additional Sets
  • Additional Options

This combination does not exist.

Foundation: Slab

Floor Plan Features of the Northport Carriage House Garage Plan


Specifications


Floors: 2
Bathrooms: 1.0
Foundation(s): Slab

Square Feet


Main Floor: 46
Upper Floor: 393
Total Conditioned: 393
Front Porch: 80
Garage: 753

Dimensions


Width: 40'-3"
Depth: 23'-3"
Height: 22'-1"

House Levels


Level Name Ceiling Heights
Main Floor 9'-0"

Construction


Wall Construction: 2x6
Exterior Finish: Lap Siding
Roof Construction: Rafter
Roof Pitch: 10:12

Features


Additional: Bonus Room

Description


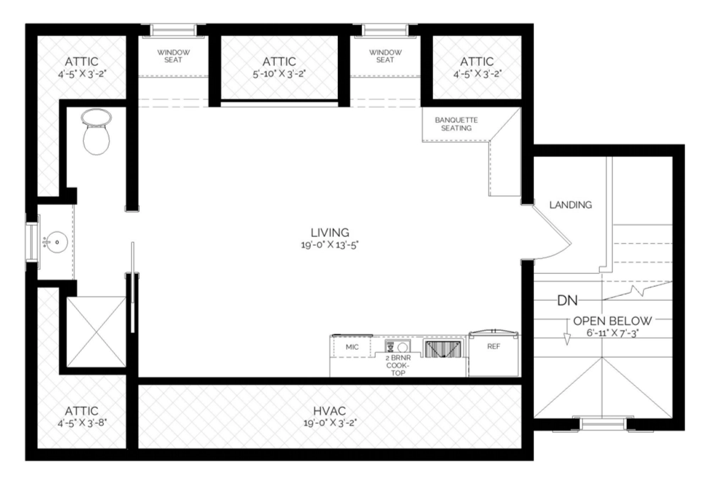
The Northport Carriage House garage plan blends southern style with practical design. This two-story garage plan includes a comfortable living space above the main level, creating the perfect setup for guests, a studio, or an office. Designed to complement a variety of home styles, the Northport combines convenience and character in one versatile layout. Easy connection to breezeway to residence

  • Two-story carriage house garage plan with flexible layout for vehicles and guests
  • Easy connection to breezeway to the existing residence
  • Upstairs living room with kitchenette and banquette seating
  • Exterior door provides private access to the second floor
  • Full bathroom and conditioned staircase for comfort year-round

Designed by Lake & Land Studios, LLC.

Plan number SL-2112.

CAD File
Source drawing files of the plan. This package is best provided to a local design professional when customizing the plan with architect.  [Note: not all house plans are available as CAD sets.]

PDF Plan Set
Downloadable file of the complete drawing set. Required for customization or printing large number of sets for sub-contractors.

Construction Set
Five complete sets of construction plans, when building the house as-is or with minor field adjustments. This set is stamped with a copyright.

Pricing Set
Recommended for construction bids or pricing. Stamped "Not For Construction". The purchase price can be applied toward an upgrade to other packages of the same plan.