La Maison Sur Loire House Plan

https://houseplans.southernliving.com/web/image/product.template/10514/image_1920?unique=ce5a502

Details: 3,469 Sq Ft, 4 Bedrooms, 4.5 Baths

3,860.00 3860.0 USD 3,860.00

0.00

Not Available For Sale

  • Plan Package
  • Foundation
  • Additional Sets
  • Additional Options

This combination does not exist.

Foundation: Crawlspace

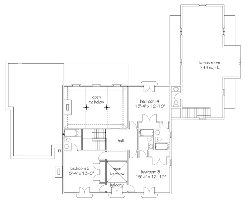
Floor Plan Features of the La Maison Sur Loire House Plan


Specifications


Floors: 2
Bedrooms: 4
Bathrooms: 4.5
Foundation(s): Crawlspace

Square Feet


Main Floor: 2,311
Upper Floor: 1,158
Total Conditioned: 3,469
Garage: 744

Dimensions


Width: 85'-6"
Depth: 69'-6"
Height: 37'-0"

House Levels


Level Name Ceiling Heights
Main Floor 10'-0"
Upper Floor 9'-0"

Construction


Wall Construction: 2x6
Exterior Finish: Stucco, Stone
Roof Pitch: 16:12

Features


Kitchen: Island, Pantry, Breakfast Nook
Primary Bedroom: Tub, Double Sink, Shower, Private Toilet, Walk-in Closet, Patio/Terrace
Additional: Fireplace, Porch, Bonus Room, Patio/Terrace, Home Office/Study

Garage


Type Size
Attached 3 - Stall

Description


Designed by New South Classics, LLC.

Plan number SL-1705.

CAD File
Source drawing files of the plan. This package is best provided to a local design professional when customizing the plan with architect.  [Note: not all house plans are available as CAD sets.]

PDF Plan Set
Downloadable file of the complete drawing set. Required for customization or printing large number of sets for sub-contractors.

Construction Set
Five complete sets of construction plans, when building the house as-is or with minor field adjustments. This set is stamped with a copyright.

Pricing Set
Recommended for construction bids or pricing. Stamped "Not For Construction". The purchase price can be applied toward an upgrade to other packages of the same plan.