Island Farmhouse Plan

https://houseplans.southernliving.com/web/image/product.template/10905/image_1920?unique=5a82dce

Details: 1,200 Sq Ft, 1 Bedrooms, 1 Baths

1,510.00 1510.0 USD 1,510.00

0.00

Not Available For Sale

  • Plan Package
  • Foundation
  • Additional Sets
  • Additional Options

This combination does not exist.

Foundation: Crawlspace

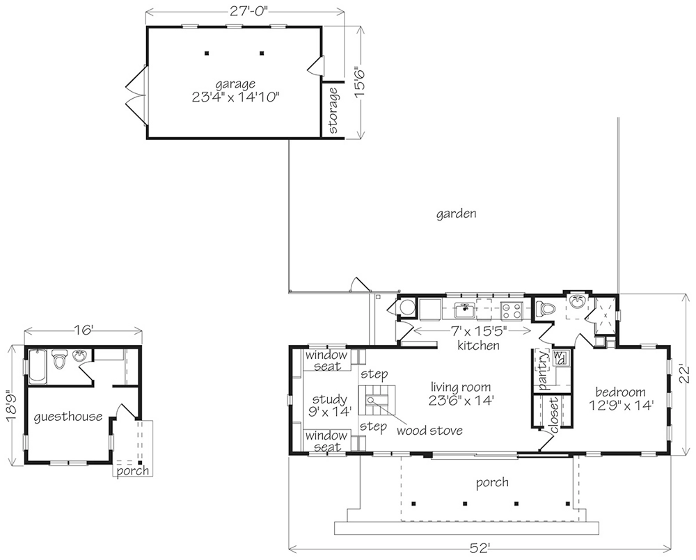
Floor Plan Features of the Island Farmhouse Plan


Specifications


Floors: 1
Bedrooms: 1
Bathrooms: 1.0
Foundation(s): Crawlspace

Square Feet


Main Floor: 1,200
Total Conditioned: 1,200
Garage: 372

Dimensions


Width: 52'-0"
Depth: 29'-0"
Height: 18'-0"

House Levels


Level Name Ceiling Heights
Main Floor 9'-0"

Construction


Wall Construction: 2x6
Exterior Finish: Board & Batten
Roof Pitch: 10:12

Features


Kitchen: Island, Galley
Additional: Fireplace, Porch

Garage


Type Size
Detached 1 - Stall

Description


A large living room with wood stove provides a place for the family to gather and spend time together. The kitchen overlooks the backyard. A small study with two window seats is a wonderful place to sit and view the surroundings. 


The study also offers room for extra sleeping space if it is needed. A separate guesthouse becomes the perfect place for privacy.


Designed by Prentiss Architects, Inc.

Plan number SL-262.

CAD File
Source drawing files of the plan. This package is best provided to a local design professional when customizing the plan with architect.  [Note: not all house plans are available as CAD sets.]

PDF Plan Set
Downloadable file of the complete drawing set. Required for customization or printing large number of sets for sub-contractors.

Construction Set
Five complete sets of construction plans, when building the house as-is or with minor field adjustments. This set is stamped with a copyright.

Pricing Set
Recommended for construction bids or pricing. Stamped "Not For Construction". The purchase price can be applied toward an upgrade to other packages of the same plan.