Fairfax Knoll House Plan

https://houseplans.southernliving.com/web/image/product.template/11116/image_1920?unique=5a82dce

Details: 2,687 Sq Ft, 4 Bedrooms, 2.5 Baths

1,510.00 1510.0 USD 1,510.00

0.00

Not Available For Sale

  • Plan Package
  • Foundation
  • Additional Sets
  • Additional Options

This combination does not exist.

Foundation: Full Basement

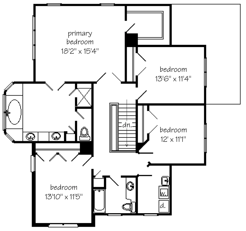
Floor Plan Features of the Fairfax Knoll House Plan


Specifications


Floors: 2
Bedrooms: 4
Bathrooms: 2.5
Foundation(s): Full Basement

Square Feet


Main Floor: 1,255
Upper Floor: 1,432
Total Conditioned: 2,687
Garage: 420

Dimensions


Width: 50'-0"
Depth: 49'-10"
Height: 29'-0"

House Levels


Level Name Ceiling Heights
Main Floor 10'-0"
Upper Floor 8'-0"

Construction


Wall Construction: 2x4
Exterior Finish: Shake
Roof Pitch: 8:12

Features


Kitchen: Island, Snack, Pantry, Breakfast Nook
Primary Bedroom: Tub, Double Sink, Shower, Double Doors, Private Toilet, Walk-in Closet
Additional: Fireplace, Porch

Garage


Type Size
Attached 2 - Stall

Description


Featuring wood shingle siding and a wraparound porch, Fairfax Knoll is timeless. It offers a floor plan that takes advantage of marvelous exterior views.


Inside, a gourmet kitchen with angled serving bar and cooktop allow for convenience and additional workspace. The breakfast room features a bay window for natural light.


In the master bedroom, a cathedral ceiling creates a dramatic atmo-sphere. The master bath is enhanced by a garden tub within the bay window.


Designed by CHK Architects & Planners.

Plan number SL-656.

CAD File
Source drawing files of the plan. This package is best provided to a local design professional when customizing the plan with architect.  [Note: not all house plans are available as CAD sets.]

PDF Plan Set
Downloadable file of the complete drawing set. Required for customization or printing large number of sets for sub-contractors.

Construction Set
Five complete sets of construction plans, when building the house as-is or with minor field adjustments. This set is stamped with a copyright.

Pricing Set
Recommended for construction bids or pricing. Stamped "Not For Construction". The purchase price can be applied toward an upgrade to other packages of the same plan.