Edmound Place House Plan

https://houseplans.southernliving.com/web/image/product.template/11014/image_1920?unique=5a82dce

Details: 2,672 Sq Ft, 3 Bedrooms, 3.5 Baths

1,510.00 1510.0 USD 1,510.00

0.00

Not Available For Sale

  • Plan Package
  • Foundation
  • Additional Sets
  • Additional Options

This combination does not exist.

Foundation: Walkout Basement

Floor Plan Features of the Edmound Place House Plan


Specifications


Floors: 2
Bedrooms: 3
Bathrooms: 3.5
Foundation(s): Walkout Basement

Square Feet


Main Floor: 1,497
Upper Floor: 1,175
Total Conditioned: 2,672
Front Porch: 90
Garage: 490

Dimensions


Width: 55'-10"
Depth: 42'-2"
Height: 33'-0"

House Levels


Level Name Ceiling Heights
Main Floor 9'-0"
Upper Floor 8'-0"

Construction


Wall Construction: 2x4
Exterior Finish: Shake, Stone
Roof Pitch: 10:12

Features


Kitchen: Island, Snack, Breakfast Nook
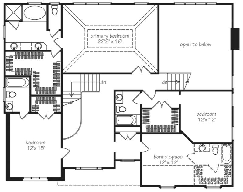
Primary Bedroom: Tub, Double Sink, Shower, Double Doors, Private Toilet, Walk-in Closet
Additional: Fireplace, Porch, Bonus Room, Screened Porch, Home Office/Study

Garage


Type Size
Attached 2 - Stall

Description


  • Stately columned front porch welcomes family and friends.
  • Formal dining room conveniently located to the left of the kitchen features coffered ceiling.
  • Spacious two-story family room includes fireplace and outdoor access.
  • Second floor has 220 square feet of additional space that can be used for future expansion.
  • A vaulted ceiling and wall of windows distinguish the comfortable upstairs master bedroom.
  • Two secondary bedrooms upstairs have private baths.


Designed by Brian Barks.

Plan number SL-430.

CAD File
Source drawing files of the plan. This package is best provided to a local design professional when customizing the plan with architect.  [Note: not all house plans are available as CAD sets.]

PDF Plan Set
Downloadable file of the complete drawing set. Required for customization or printing large number of sets for sub-contractors.

Construction Set
Five complete sets of construction plans, when building the house as-is or with minor field adjustments. This set is stamped with a copyright.

Pricing Set
Recommended for construction bids or pricing. Stamped "Not For Construction". The purchase price can be applied toward an upgrade to other packages of the same plan.