Dogtrot House Plan

https://houseplans.southernliving.com/web/image/product.template/11175/image_1920?unique=5a82dce

Details: 1,256 Sq Ft, 2 Bedrooms, 2 Baths

1,365.00 1365.0 USD 1,365.00

0.00

Not Available For Sale

  • Plan Package
  • Foundation
  • Additional Sets
  • Additional Options

This combination does not exist.

Foundation: Crawlspace

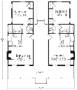
Floor Plan Features of the Dogtrot House Plan


Specifications


Floors: 1
Bedrooms: 2
Bathrooms: 2.0
Foundation(s): Crawlspace

Square Feet


Main Floor: 1,256
Total Conditioned: 1,256

Dimensions


Width: 42'-0"
Depth: 48'-0"
Height: 21'-0"

House Levels


Level Name Ceiling Heights
Main Floor 9'-0"

Construction


Wall Construction: 2x6
Exterior Finish: Lap Siding, Board & Batten
Roof Pitch: 9:12

Features


Kitchen: U-Shaped
Primary Bedroom: Walk-in Closet
Additional: Fireplace, Porch

Description


History prevails in the design of this cabin, which recalls the simplicity of the vernacular building form known as the dogtrot (a house bisected by a center hall). 


It's actually two cabins in one. The front porch and center hall are shared spaces, allowing the two units to function as one when desired. Each bedroom includes an indented wall between the closets that's the perfect niche for an armoire or a large chest of drawers. 


Included in each unit is space for a stackable washer and dryer. A fireplace is the center of each living area. Dogtrot is a great vacation home for two couples to share.


Designed by William H. Phillips.

Plan number SL-733.

CAD File
Source drawing files of the plan. This package is best provided to a local design professional when customizing the plan with architect.  [Note: not all house plans are available as CAD sets.]

PDF Plan Set
Downloadable file of the complete drawing set. Required for customization or printing large number of sets for sub-contractors.

Construction Set
Five complete sets of construction plans, when building the house as-is or with minor field adjustments. This set is stamped with a copyright.

Pricing Set
Recommended for construction bids or pricing. Stamped "Not For Construction". The purchase price can be applied toward an upgrade to other packages of the same plan.