Centennial House Plan

https://houseplans.southernliving.com/web/image/product.template/10883/image_1920?unique=988a205

Details: 7,537 Sq Ft, 4 Bedrooms, 6 Baths

5,080.00 5080.0 USD 5,080.00

0.00

Not Available For Sale

  • Plan Package
  • Foundation
  • Additional Sets
  • Additional Options

This combination does not exist.

Foundation: Walkout Basement

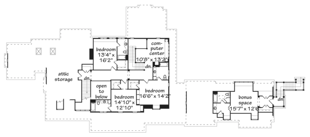
Floor Plan Features of the Centennial House Plan


Specifications


Floors: 2
Bedrooms: 4
Bathrooms: 6.0
Foundation(s): Walkout Basement

Square Feet


Main Floor: 3,875
Upper Floor: 1,701
Lower Floor: 1,961
Total Conditioned: 7,537

Dimensions


Width: 154'-0"
Depth: 71'-0"
Height: 48'-0"

House Levels


Level Name Ceiling Heights
Main Floor 10'-0"
Upper Floor 9'-4"

Construction


Wall Construction: 2x4
Exterior Finish: Brick, Shake
Roof Pitch: 10:12

Features


Kitchen: Island, Pantry, Breakfast Nook
Primary Bedroom: Tub, Double Sink, Shower, Double Doors, Private Toilet, Walk-in Closet, Outdoor Access
Additional: Fireplace, Loft, Porch, Bonus Room, Home Office/Study

Garage


Type Size
Detached 3 - Stall

Description


Grand and traditional best describe this Southern Living Idea House, designed by Spitzmiller & Norris, Inc., of Atlanta. A mixture of brick and wood-shingle siding on the exterior enriches the understated style. And a covered porch with wood columns offers a wonderful retreat after a long day. Detailed molding and built-ins create an elegant mood. 


Designed by Spitzmiller and Norris, Inc.

Plan number SL-231.

CAD File
Source drawing files of the plan. This package is best provided to a local design professional when customizing the plan with architect.  [Note: not all house plans are available as CAD sets.]

PDF Plan Set
Downloadable file of the complete drawing set. Required for customization or printing large number of sets for sub-contractors.

Construction Set
Five complete sets of construction plans, when building the house as-is or with minor field adjustments. This set is stamped with a copyright.

Pricing Set
Recommended for construction bids or pricing. Stamped "Not For Construction". The purchase price can be applied toward an upgrade to other packages of the same plan.