Brickyard Road House Plan

https://houseplans.southernliving.com/web/image/product.template/10495/image_1920?unique=b311cca

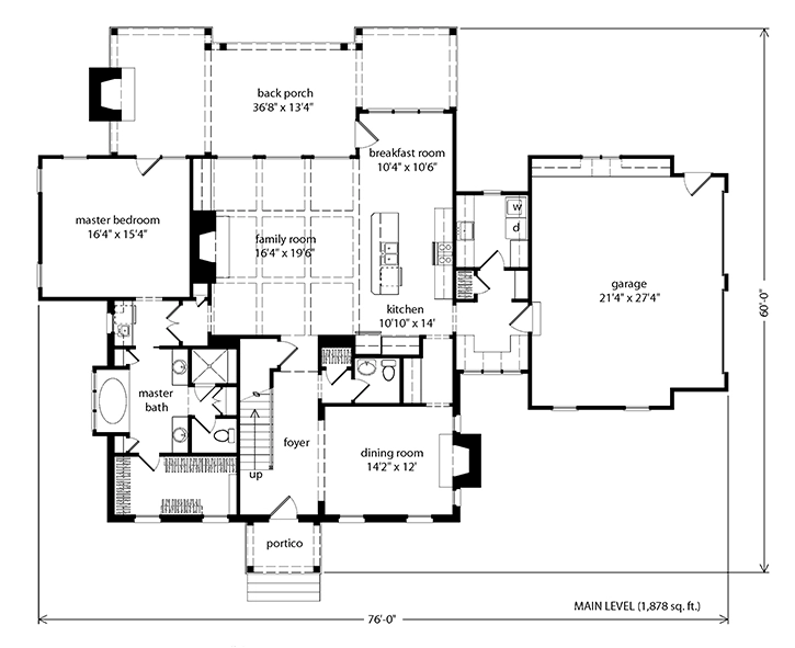
Details: 2,947 Sq Ft, 4 Bedrooms, 4.5 Baths

1,930.00 1930.0 USD 1,930.00

0.00

Not Available For Sale

  • Plan Package
  • Foundation
  • Additional Sets
  • Additional Options

This combination does not exist.

Floor Plan Features of the Brickyard Road House Plan


Specifications


Floors: 2
Bedrooms: 4
Bathrooms: 4.5
Foundation(s): Crawlspace, Slab

Square Feet


Main Floor: 1,878
Upper Floor: 1,069
Total Conditioned: 2,947

Dimensions


Width: 76'-0"
Depth: 60'-0"
Height: 35'-0"

House Levels


Level Name Ceiling Heights
Main Floor 10'-0"
Upper Floor 9'-0"

Construction


Wall Construction: 2x4
Exterior Finish: Brick, Lap Siding
Roof Pitch: 10:12

Features


Kitchen: Island, Snack, Breakfast Nook, Galley
Primary Bedroom: Tub, Double Sink, Shower, Porch, Double Doors, Private Toilet, Walk-in Closet
Additional: Fireplace, Loft, Porch

Garage


Type Size
Attached 2 - Stall

Description


Designed by L. Mitchell Ginn and Associates, Inc.

Plan number SL-1681.

CAD File
Source drawing files of the plan. This package is best provided to a local design professional when customizing the plan with architect.  [Note: not all house plans are available as CAD sets.]

PDF Plan Set
Downloadable file of the complete drawing set. Required for customization or printing large number of sets for sub-contractors.

Construction Set
Five complete sets of construction plans, when building the house as-is or with minor field adjustments. This set is stamped with a copyright.

Pricing Set
Recommended for construction bids or pricing. Stamped "Not For Construction". The purchase price can be applied toward an upgrade to other packages of the same plan.